SANDY POINT residence
New-construction custom residence in Sandy Point, WA - 3,087 SF - UNDER CONSTRUCTION - Built by Steve Guyer
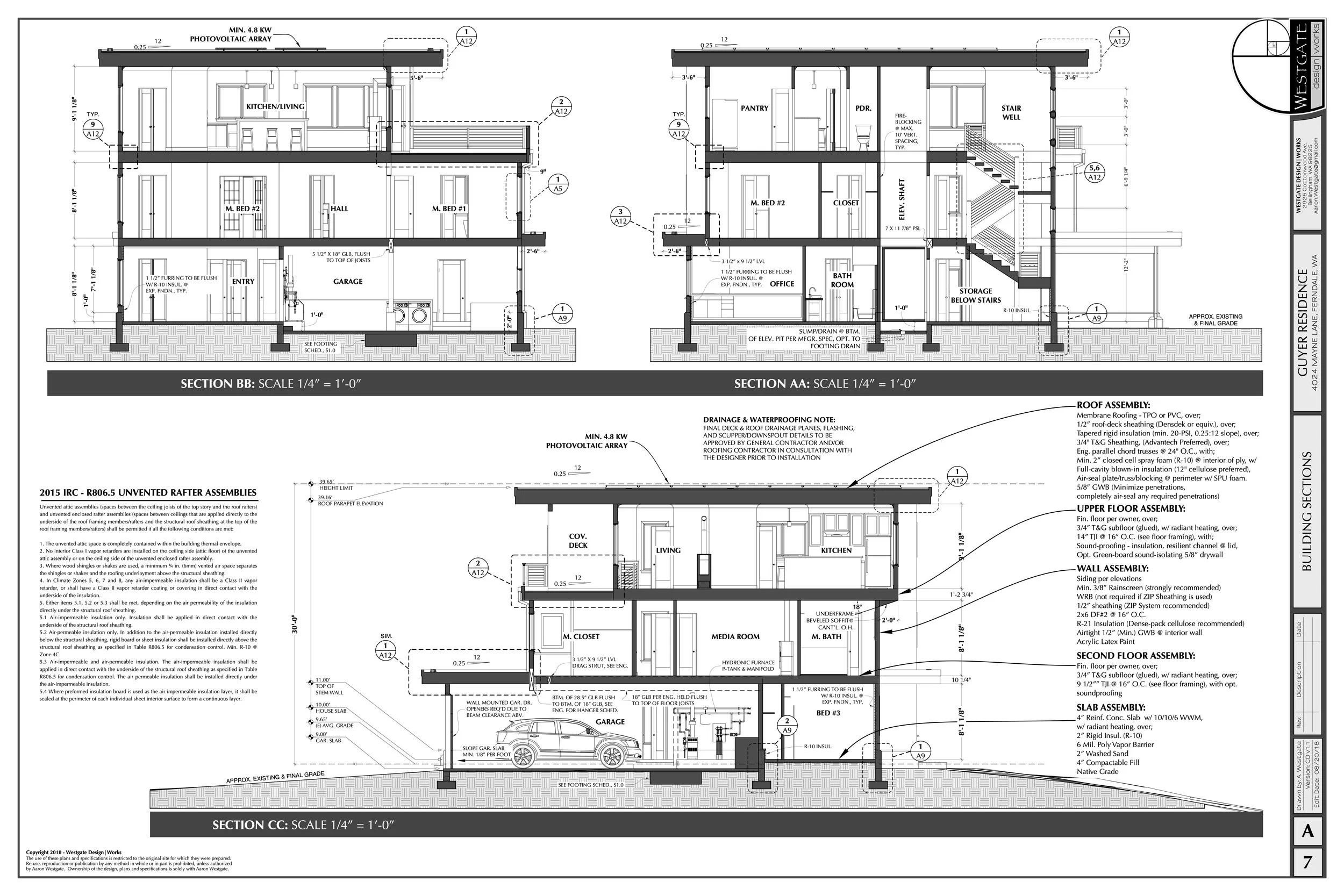
Built to maximize every inch of height allowed on this site, we created an upper living area that provides incredible views of the San Juan Islands and North Cascades. With an interior elevator shaft planned in, the home will allow the owners to age in place as the years progress.
Rear Elevation
Front Elevation
Upper Deck & Living
Original perspective drawings
Building Sections